Projets
Index
Notre équipe
Baignade naturelle Les Mosses
Mandat pour l’exécution de l’ouvrage
2024 – en cours
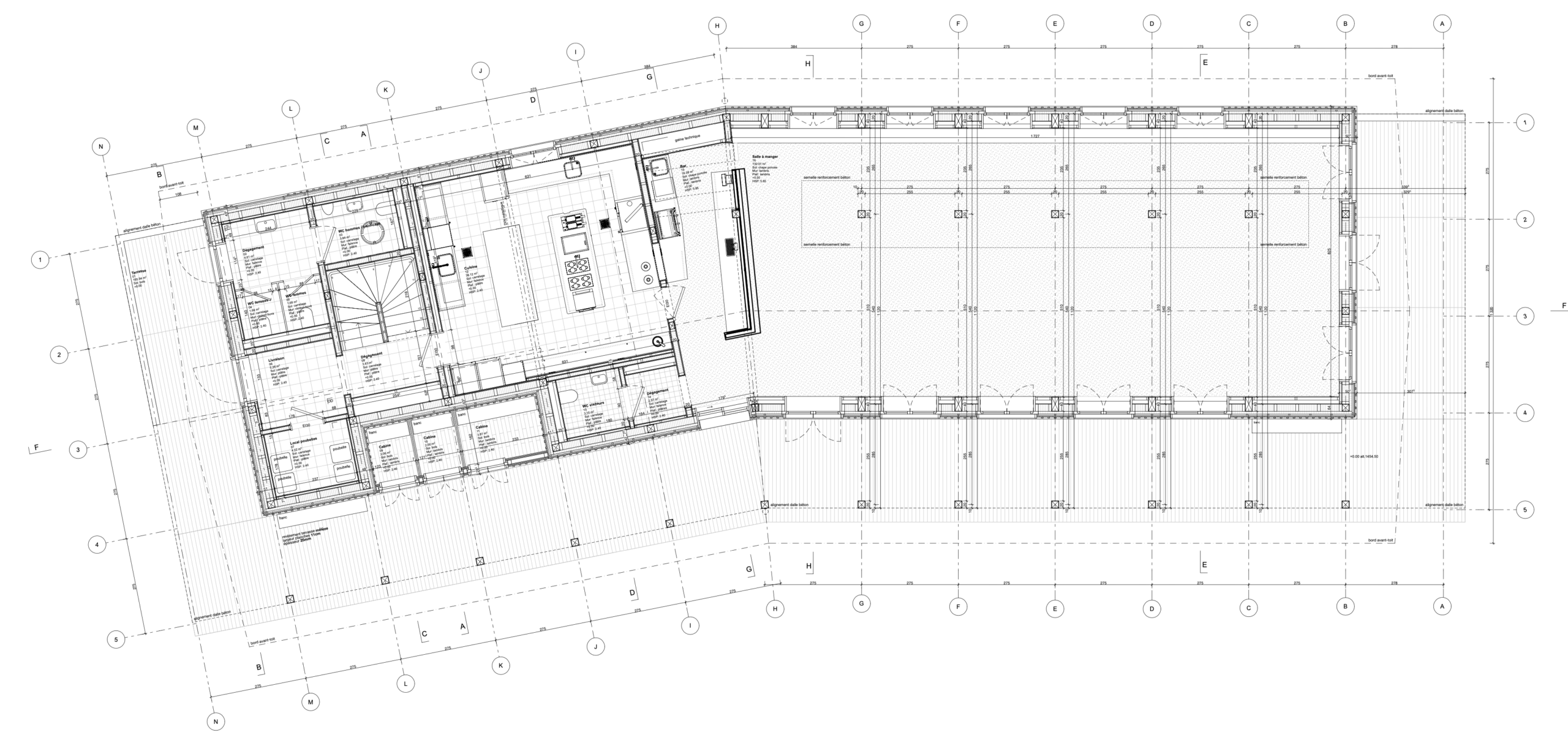
Plan du rez-de-chaussée
Plan 1er étage
Façade longitudinale
+