Transformation et agrandissement du centre scolaire de Perrosalle, bâtiment C
Concours ouvert à 1 degré,
1er prix
2023 – en cours
Bandeau équipe
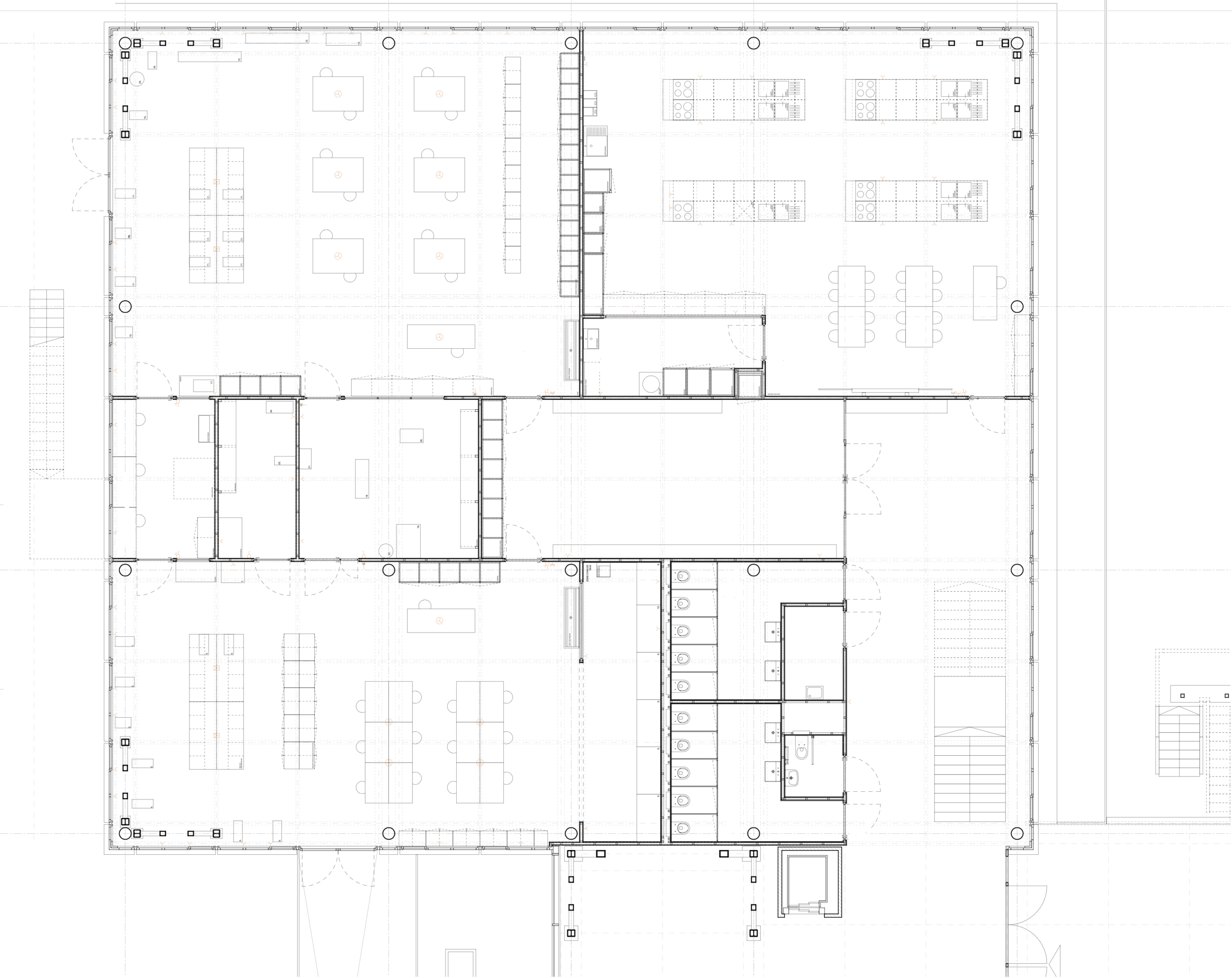
Rez-de-chaussée
Image de projet
Image de projet
Bandeau équipe
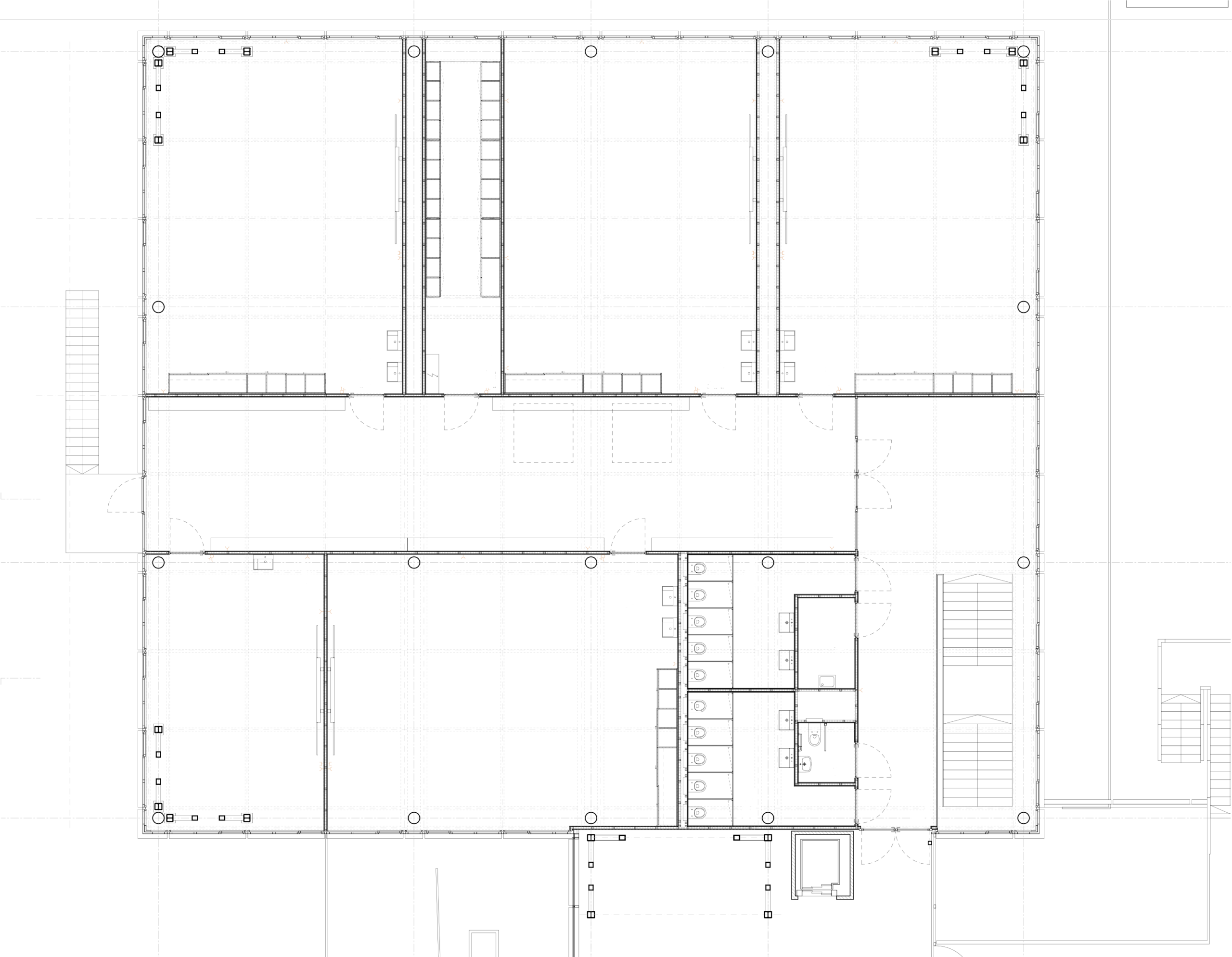
Plan rez supérieur
Image de projet
Image de projet