Projets
Index
Notre équipe
Transformation d’un rural à Vers-l’Église
Mandat privé
2022 – 2025
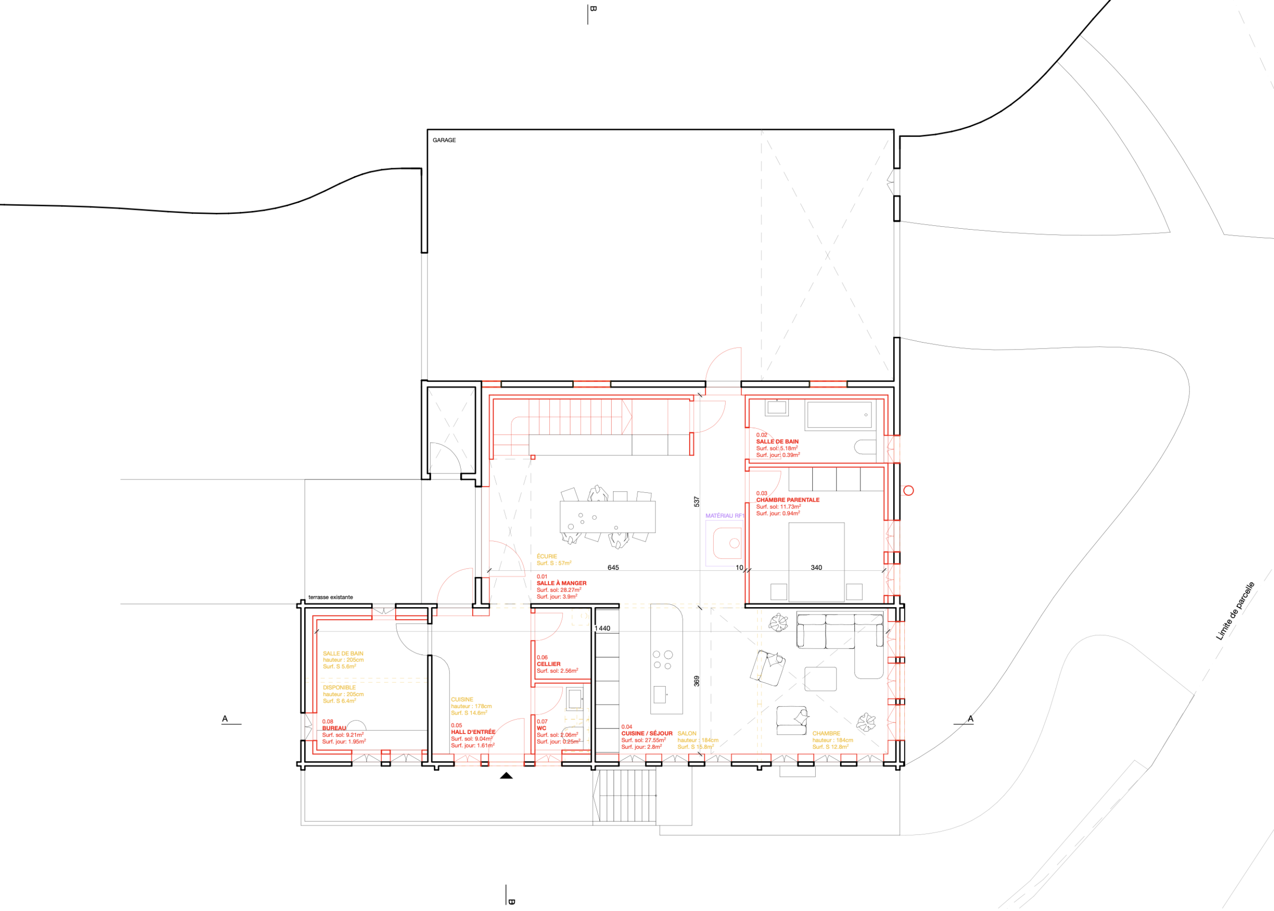
Plan rez supérieur
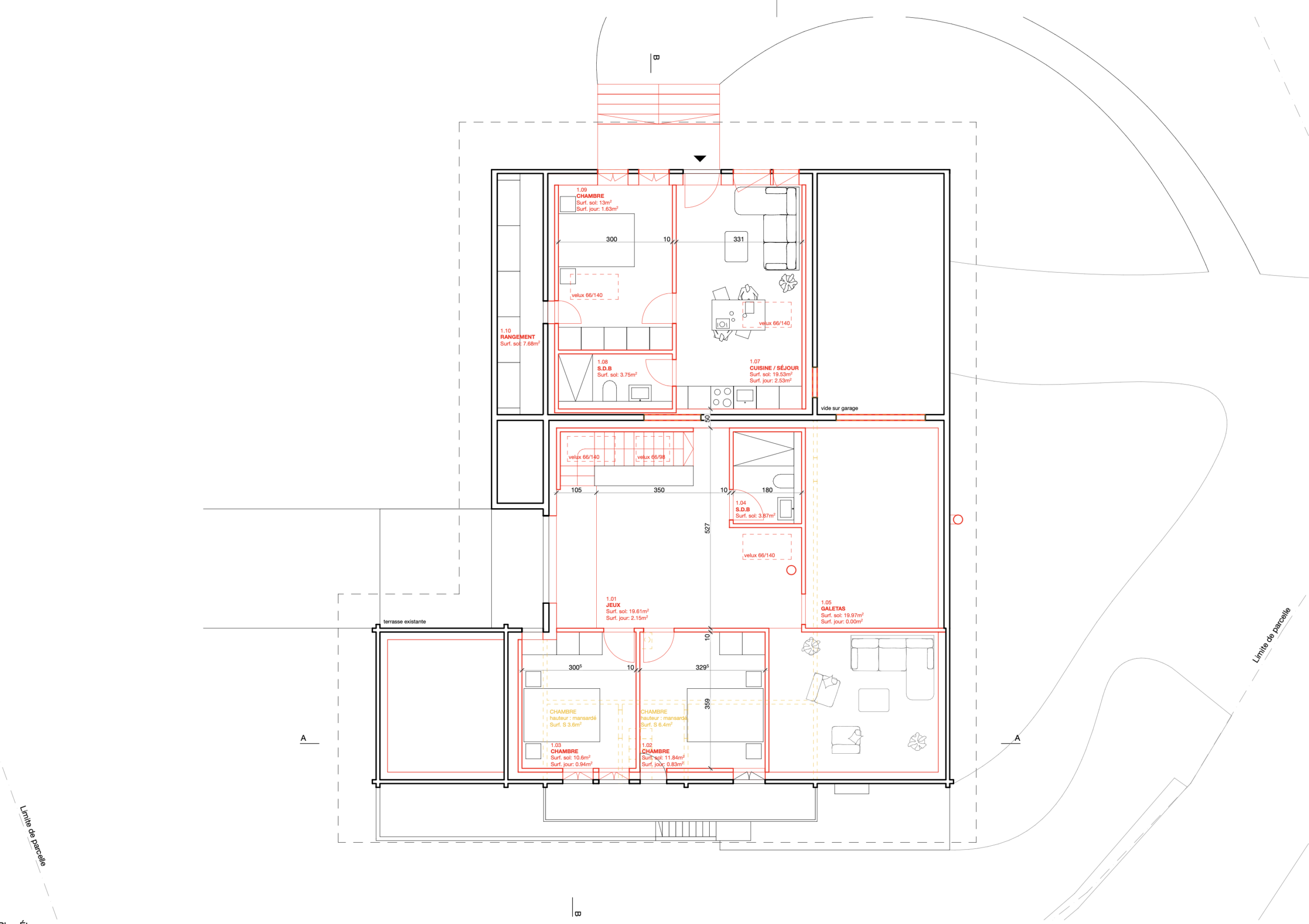
Plan d'étage
Image expression de façade
+